
关键词:建筑
KEY WORDS:ARCHITECTURE
Project | 项目:密尔沃基林间别墅
Location | 地点:美国,密尔沃基
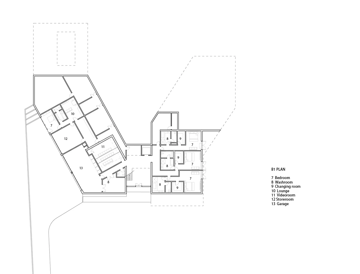
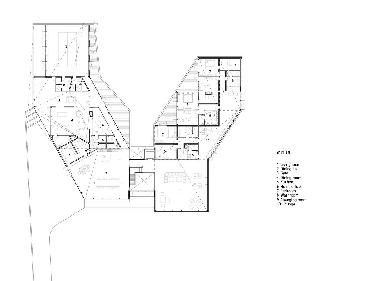
林间别墅坐落于美国密尔沃基市德拉菲尔德区。基地北高南低,北望山林,南眺湖景,环境幽静,风景极美。其建筑视野开阔,北面山林,南临湖泊,内部大空间功能和流畅的流线组织与林间环境融为一体,让这幢别墅成为一个拥抱自然的观赏台。
设计利用地形划分功能区域,将主要的生活区放置在一层,其余辅助区放置在地下室,如车库。因存在近一层高的自然地势落差,地下室北侧与土壤想接,一层生活区域往北延伸并围绕成一个半开敞的庭院。后根据功能分区以及流线控制的需要将建筑主体分为两个单体,其用可观景的玻璃走廊连接,私密空间放置北侧,毗邻中庭,可以观赏到隐逸的树林,营造出一种非常宁静优雅的气氛。活动区域放置南侧与私密空间对望,分明的功能划分使得室内空间得以充分利用并很融洽的与屋外环境相融合。使得业主既能感受到自然的气氛又能远眺开阔的湖面,让人在一种愉快而放松的状态下交流,生活。