
关键词:综合室内
KEY WORDS:INTERIOR
PROJECT | 项目: 補時
LOCATION | 地点:南京
BUILDING AREA | 建筑面积: 4000㎡
【建筑纪要】



【工程照片 | 2018年施工现场】
【设计过程】
补时 | 事件的空间性
補時通过艺术活动和生活方式回应多元文化混合的现状,它将空间系统与事件系统叠置,打破机能与形式间的层级关系,因此同样的空间会因为所介入的事件而改变,从而传达事件的空间性。
補時补的不是现实维度的时间,而是事件带动形式的延伸,一种空间的叠加,场景的交织,从而让人感受到时间在补充。
空间因事件而定义。
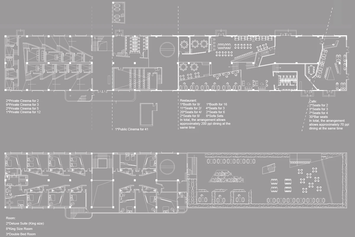
例如露天酒吧,它也可能成为举办社会活动的场所,途径客房的过程中欣赏艺术作品,出影厅又瞬间进入艺术的氛围。拱顶区为主入口,不但为展厅提供服务也是酒店的check-in和影厅的检票区。
书筒除了阅读以外也是主要交通枢纽,可以通向所有楼层,直达客房,餐厅和露台。空间的配置和设计不仅是为了将所有功能互连起来,在特定时间点,通过电控门装置也保证了各区域能独立运营。


概念 | 2.5维
「2.5维」也是空间上的“补时”。
借用墙与形势在二维与三维不同维度间的交织,给人强烈的视觉冲击力,打破固有的思维惯性,形成更具有前瞻性和更富有弹性的空间,会让人安静的去欣赏和体会,更好的展现形式的多样性。
列举一系列组合方案,根据補時的需求条件进行筛选,排列,推敲出最佳方案。建立一条东西贯通的动线作为第一步,在此基础上填入组合方案,再结合功能做微调,这个过程需要在设计阶段反复推敲。

形式与机能交互,反传统的概念颠覆了既有空间的区分,带来一种持续而动态的空间体验。 墙既是展面,也指引参观者前行,每一面墙都存在不同的维度,它可能延伸得很远,也可能挤压成一个狭窄空间,营造深浅远近的意境,在无形中让参观者无法直接到达目的地,整个路线充满乐趣与未知,在这里,没有赶时间一说,補時就是一个花时间的地方。

看与被看 | 空间的事件性
空间诱发事件。
窥视是西方艺术中画框的意义,采用画框元素使補時的每间客房变成一个“窥视空间”。一进门透过画框看到的卧室是一景,躺在床上透过画框看到的又是另一个景,让隔框观看另一世界成为可能,视觉与空间相互影响。
VIP套房则是另一种窥视空间,单向镜作为一道围墙,视线只能由内而外的单向进行,躺在床上就可以看到走道上的参观者,在满足好奇的同时也会担心被他们看到,这是一个刺激的体验。VIP套房的住客还可以控制公区屏幕的播放内容进行现代信息化的资源共享,“看于被看”影响着我们的身份,我们即是参观者,也是行为艺术的作品。


拱顶区楼梯可到达二楼客房,设计纵向空间的交流中完成“看于被看”的场景化体验。“我站在桥上看风景,看风景的人在楼下看我”。
厅借用不同角度的空间错位,利用高低差异进行区域划分,提高顾客就餐的私密性。
移步换景,不同的角度看到不同的世界 。

书筒抬高地面1.5m,无法直接看到内部,参观者需要弯下腰进入书筒,添加了对于筒内未知的神秘感。书筒垂直贯穿補時,筒内非黑即白,神圣且孤寂,顶部切口朝向太阳,如同罗马万神殿象征着神与人的联系。将书筒一分为二,人通过白色双向楼梯步行而上,对面是具有对立感的黑色书架,使体验者在路径中生强烈的孤独感。
以楼梯口为分界线,右边靠近客房,定位更偏向花园,较多的绿植保证隔音,包间也由绿植围绕而成,楼梯以右是从地面延生而起的露台酒吧,吧台是楼梯的延伸,舞台的位置是吧台的正切,整体造型干净利索,酒吧在风雨天不开放,吧台可以封闭,座椅能收起。
三楼是一个花园展厅,展板可以纵向移动。